Coming up with a great restaurant concept takes thought, a grasp of local competition, and inspiration. Whether you're opening a brand-new restaurant or redesigning an existing one, your restaurant layout is essential.
By giving you an overall vision of your restaurant’s potential setup, a well-thought-out approach will enable you to make the most out of your space, no matter how big or small, significantly impacting efficiency and the overall dining experience.
Designing an accurate, comprehensive restaurant layout and the corresponding floor plan is one of the most important early steps. The layout is the blueprint that empowers you to turn your concept and brand into a reality.
Once you have defined the type of food, atmosphere, and service model you want and found a suitable location, you’re ready for the next milestone: planning a clear, comprehensive restaurant layout.
What is a restaurant floor plan?
A restaurant layout refers to the overall arrangement and design of your restaurant's space, encompassing how different areas function together to create a specific flow and atmosphere. The restaurant floor plan, usually digital but sometimes hand-drafted, is the technical drawing or map representing this layout.
Designed to scale, the floor plan should accurately show the relative positions of every room, fixture, door, window, entrance, and even electrical outlets. It indicates the size of each room, the distance between spaces, and the individual setup for each section, including furniture, equipment, and, crucially, table positions. Considering your restaurant layout early on is crucial for effective restaurant design.
Every restaurant floor plan must consider room capacity to determine the best layout and seating arrangement. Key considerations often include:
- The ideal space per person is generally around 1.67-1.86 square metres (18-20 square feet).
- Full-service restaurants typically allocate 1.11-1.39 square metres (12-15 square feet) per seat.
- A minimum of 46 cm (18 inches) should be maintained between occupied chairs to ensure diner comfort.
The shape of your dining tables also impacts seating capacity. For rectangular tables, allow adequate space near walls (around 30 cm or 1 foot) and between tables and any opening cabinets (at least 70 cm or 2.3 feet). Round table capacity depends on diameter: typically, 60 cm (approx. 2 feet) tables suit two people, while 90 cm (approx. 3 feet) is comfortable for three, and so on.
Don't underestimate the importance of your kitchen arrangement within the overall layout. Opt for ergonomic furniture and equipment suited to your staff's height, ensuring easy reach for ingredients and tools to maintain a smooth operation.
A properly executed restaurant layout, represented accurately in the floor plan, helps maximise space, shape a better customer experience, and ensure the safety of both guests and staff.
What to include in a restaurant floor plan?
A comprehensive restaurant floor plan should detail all areas of your establishment, considering their function and flow within the overall layout:
- Dining rooms (considering different sections or ambiances)
- Bar areas (including service and guest seating)
- Entrances and waiting areas (focusing on first impressions and comfort)
- POS terminals and payment stations (strategically placed for efficiency)
- The kitchen (including distinct zones for food preparation, cooking, plating, and server pick-up)
- Storage rooms (dry goods, refrigerated, cleaning supplies) and dishwashing areas
- Restrooms (easily accessible and well-maintained)
- Corridors or stairwells (ensuring clear pathways)
- Staff rooms or break areas
- Any outdoor spaces (patios, terraces)
Respecting recommended distances between tables is essential for both comfort and safety. Generally, allow at least 91 cm (36 inches) between the edges of adjacent tables. These layout features ensure compliance with safety regulations, guest comfort, and ease of movement for staff, which directly impacts service speed and efficiency. Thinking about table arrangement early can help increase restaurant table turnover later on.
Including clearly signposted emergency exits in the floor plan design is crucial for quick evacuation. Furthermore, according to legal accessibility regulations, all corridors and entrances must accommodate people with reduced mobility, incorporating ramps where necessary.
Benefits of an effective restaurant layout
Investing time in planning your restaurant layout offers significant advantages that extend beyond aesthetics. A well-designed layout directly contributes to:
- Increased efficiency: A logical flow between the kitchen, serving stations, and dining areas minimises staff movement, reduces bottlenecks, speeds up service, and decreases the risk of accidents. This creates a less stressful environment for your team.
- Improved customer experience: A comfortable and welcoming layout enhances the overall dining experience. Adequate spacing, pleasant ambiance, clear pathways, and easily accessible facilities contribute to guest satisfaction and encourage return visits. First impressions count, and a thoughtful layout plays a key role in how you welcome clients and anticipate their needs.
- Maximised profitability: An optimised layout allows for the ideal number and arrangement of tables, balancing capacity with comfort. This helps maximise potential revenue per service and improve table turnover rates without making guests feel rushed or cramped.
- Enhanced safety and compliance: A properly planned layout ensures adherence to safety regulations, including emergency exits, fire codes, and accessibility standards, protecting both your guests and staff.
How to create a restaurant floor plan?
Creating an effective and compliant restaurant floor plan involves several steps, addressing the core question of "how can I design my own restaurant?".
- Define dimensions and visibility: Accurately measure your premises. Consider how visible the restaurant is from the outside – large windows can attract passersby and bring in natural light. Note the location of existing ventilation systems, especially in the potential kitchen area.
- Identify key zones: Plan the positioning of main areas like the dining room, waiting area, bar (often near the entrance for visibility and accessibility), kitchen, restrooms, and storage. Think about the natural flow between these zones for both staff and guests.
- Choose furniture and equipment: Select durable, functional furniture that aligns with your restaurant's style and concept. Ensure kitchen equipment is efficient and complies with hygiene and safety regulations. Consider ergonomics for staff comfort.
- Define the concept and atmosphere: Consider colours, materials, lighting, and decorations. These elements should complement the desired atmosphere and reinforce your restaurant's brand identity throughout the layout.
- Visualise the layout: Using specialised restaurant floor plan software can significantly help in visualising the layout, testing different arrangements, and ensuring accurate scaling. These tools allow you to experiment with furniture placement and flow before committing to physical changes. Once your plan is finalised, tools like TheFork Manager can help you digitally map your reservations directly onto your floor plan, streamlining table management.
- Consider professional help: For a complex project or a highly professional result, engaging interior architects or designers specialising in restaurants is advisable. They bring expertise in space optimisation, building codes, and design trends.
- Consult your team: Involve your key staff (chef, manager) in the planning process. They have practical insights into workflow requirements and potential operational challenges related to the layout. Conduct simulations in the actual space if possible.
Following these steps helps create a restaurant layout that optimises workflow and ensures a pleasant experience for everyone.
5 examples of restaurant floor plan templates
Choosing the right restaurant floor plan is a critical decision that impacts everything from operational efficiency to guest experience.
There is no single 'best' layout; the ideal design depends on your concept, space, and service style. To help illustrate the possibilities, we've analysed five distinct restaurant floor plan templates. Each example highlights different approaches to seating, workflow, and atmosphere, showcasing their unique strengths, weaknesses, and ideal applications.
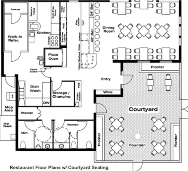
1. Indoor dining with a central courtyard

Description & Analysis
- This floor plan features two distinct dining areas: a traditional indoor dining room with a long bar and a separate outdoor courtyard centred around a fountain.
- The kitchen, dishwashing, and storage areas are located on the left side, serving both the interior and exterior spaces.
- Restrooms and an entry/wine storage area are positioned between the two main seating zones, acting as a buffer.
Strengths
- Versatile Ambience: Offers guests two different dining experiences - a classic indoor setting and a scenic, open-air courtyard.
- Increased Capacity: The courtyard significantly increases the total number of covers, especially during peak season.
- Aesthetic Focal Point: The fountain and planters make the courtyard a major visual draw, enhancing the restaurant's appeal.
Weaknesses
- Weather Dependent: The courtyard's usability is entirely dependent on the weather, making it an unreliable source of revenue in many climates.
- Operational Strain: Servicing two separate areas can stretch staff thin and may require duplicate service stations, increasing complexity.
- Inefficient Flow: The distance from the kitchen to the furthest courtyard tables could lead to slower service times and food temperature issues.
Best Use Cases
- Restaurants in locations with warm, predictable climates.
- Venues aiming for an upscale-casual or romantic atmosphere where ambience is a key selling point.
- Businesses that host private events, as the courtyard can be booked separately.
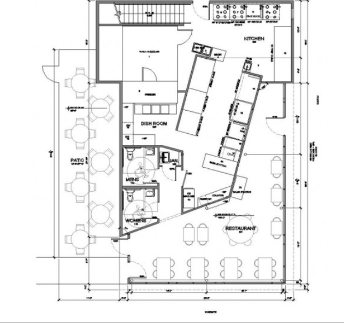
2. Asymmetrical layout for unconventional spaces

Description & Analysis
- This restaurant floor plan is designed for a non-rectangular, angular space, with diagonal lines defining the main workflow and service counter.
- It includes a small indoor dining area, a separate outdoor patio, and a compact, efficient kitchen and dish room in the back.
- The restrooms are tucked into an irregular corner to maximise the usable dining space.
Strengths
- Space Maximisation: The design cleverly utilises an awkward architectural footprint, turning potential dead space into functional areas.
- Visual Interest: The unconventional angles create a dynamic and modern feel, distinguishing it from standard grid layouts.
- Clear Zoning: Despite the shape, there's a good separation between the patio, indoor dining, and service areas.
Weaknesses
- Awkward Pinch Points: The sharp angles can create bottlenecks for staff and guests moving through the restaurant.
- Inefficient Workflow: A non-linear layout can make the service path less intuitive and potentially slower for staff.
- Limited Seating Flexibility: The fixed seating clusters are difficult to rearrange for larger parties or events.
Best Use Cases
- Bistros, cafes, or small restaurants located in corner units or buildings with unique architectural challenges.
- Venues where a modern, edgy aesthetic is part of the brand identity.
- Businesses with a significant focus on outdoor patio dining.
3. Zoned layout for large, high-capacity venues

Description & Analysis
- This plan showcases a large, high-volume restaurant with a prominent U-shaped bar as the central hub.
- It features multiple distinct seating zones: standard tables, booths along the walls, an elevated platform seating area, and outdoor tables.
- Multiple server stations are strategically placed to manage the large floor, and the host stand is clearly positioned at the entrance.
Strengths
- Excellent Zoning: The layout effectively breaks down a large space into smaller, more intimate areas, offering guests varied experiences.
- High Seating Capacity: The mix of booths and tables maximises the number of covers.
- Energetic Atmosphere: The central bar creates a vibrant focal point and serves as a natural waiting area for guests.
Weaknesses
- Complex Operations: Managing multiple zones, server sections, and high volume requires a large, well-trained staff and strong management.
- Noise Levels: The open design, especially around the bar, can become very loud during peak hours.
- Potential Bottlenecks: The main entrance and the path to the restrooms can become congested.
Best Use Cases
- Large brasseries, steakhouses, or premium sports bars in busy urban locations.
- High-volume restaurants that need to cater to diverse groups, from couples to large parties.
- Venues where a lively, high-energy atmosphere is a key part of the appeal.
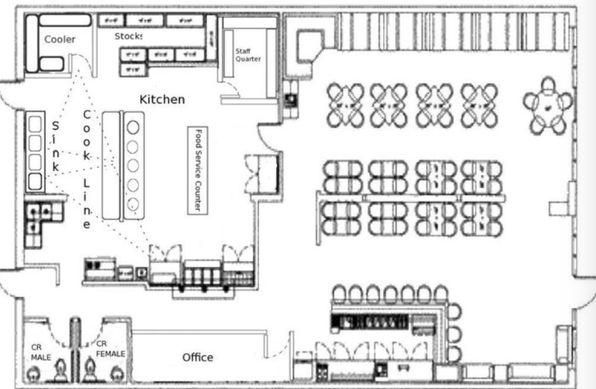
4. Cafeteria-style layout for quick service

Description & Analysis
- This floor plan is optimised for efficiency and high turnover, featuring a prominent food service counter where customers order and pay.
- The seating area consists of uniform rows of booths and a few standalone tables, arranged in a simple grid pattern.
- The kitchen is located directly behind the service line, ensuring a fast and direct workflow from cooking to customer.
Strengths
- Maximum Efficiency: The linear flow, order, pay, and sit is predictable and extremely fast for both customers and staff.
- High Turnover: The layout is designed to serve a large number of guests quickly, making it ideal for busy lunch or dinner rushes.
- Simple Operations: The straightforward design simplifies cleaning, staffing, and management.
Weaknesses
- Lacks Ambience: The focus on function over form results in a less intimate or memorable dining atmosphere.
- Inflexible Seating: The fixed booths are difficult to adapt for larger groups or special requests.
- Can Feel Crowded: The grid layout can feel congested and loud when the restaurant is at full capacity.
Best Use Cases
- Fast-casual restaurants, corporate or school cafeterias, and quick-service establishments.
- Locations where speed of service and volume are the primary business drivers.
- Franchise models that require a standardised, easily replicable floor plan.
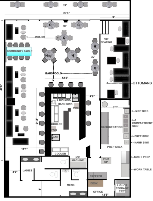
5. Bar and lounge layout with mixed seating

Description & Analysis
- This plan is centred around a large, dominant bar, making it the clear focal point of the venue.
- Seating is highly varied to encourage socialising: a long community table, traditional dining tables, barstools, and a separate VIP lounge area with soft seating (ottomans).
- The kitchen and prep areas are located in the back, with a dedicated pickup station for service.
Strengths
- Vibrant, Social Atmosphere: The design encourages interaction and creates a dynamic, high-energy environment.
- Caters to Diverse Groups: The mixed seating accommodates everyone from solo diners at the bar to large parties at the community table and groups seeking comfort in the lounge.
- High Beverage Sales Potential: The prominence of the bar naturally drives drink sales.
Weaknesses
- Lower Seating Density: Compared to a traditional dining layout, this plan seats fewer guests in the same amount of space.
- Potentially High Noise Levels: The open, social design can become very loud, which may not appeal to all customers.
- Niche Concept: This layout is highly specialised and may not be suitable for restaurant concepts focused primarily on the dining experience over the bar scene.
Best Use Cases
- Cocktail bars, wine bars, tapas restaurants, or modern lounges that serve food.
- Venues targeting a social, nightlife-oriented crowd.
- Restaurants where beverage sales are a primary source of revenue.
Tips for designing a restaurant floor plan
When designing your restaurant layout, keep these factors in mind:
- Restaurant building codes and regulations: Stay informed about local regulations regarding fire exits, waste disposal, restroom requirements, ventilation, and capacity limits. An architect or designer can advise, but being knowledgeable yourself is beneficial. Consider potential needs for social distancing measures as well.
- Accessibility guidelines: Ensure your layout meets legal accessibility requirements for people with disabilities (e.g., ramp access, table heights, restroom facilities). Creating an inclusive environment is crucial.
- Dining area size: A common guideline suggests dedicating around 60% of the total space to the dining area (including bar and waiting areas), with the remaining 40% for the kitchen and back-of-house operations.
- Space per customer: The square meterage allocated per customer often varies by restaurant type. Fine dining usually allows more space than casual or fast-food establishments. Always adhere to the designated occupant load for safety.
- Restaurant table type and spacing: Offer a variety of table sizes and types (booths, freestanding tables) to accommodate different group sizes and preferences. Ensure ample space between tables for comfortable circulation and service.
- Seek inspiration: Look at layouts of successful restaurants with a similar concept or target audience. Analyse what works well and identify elements you could adapt for your own space. Consider the flow, ambiance, and functionality from a guest's perspective. If planning includes an outdoor space, research how to best prepare and manage it, perhaps by exploring how to get your restaurant's sheltered outdoor area ready and bookable.
Common mistakes to avoid when designing a restaurant floor plan
Designing the perfect restaurant layout requires careful attention to detail. Avoid these common pitfalls:
- Overcrowding the space: Placing too many tables might seem profitable but can hinder staff movement, obstruct emergency exits, reduce customer comfort, and negatively impact the dining experience.
- Neglecting kitchen logistics: An inefficient kitchen layout disrupts workflow throughout the entire restaurant. Clearly define and organise preparation, cooking, and service areas to optimise speed and efficiency.
- Poorly marked or obstructed emergency exits: Ensure all emergency exits are clearly signposted, easily accessible, and comply with all safety regulations. This is vital for everyone's safety, including those with reduced mobility.
A well-thought-out restaurant layout, accurately reflected in its floor plan, is foundational to your business's efficiency and success. Don't rush the planning stage; careful consideration upfront can save significant costs and operational headaches later. TheFork Manager can make things easier for you, with features to optimise your digital floor plan. Want to know more?
Empty tables and ever-increasing costs?
Try TheFork Manager! Increase your bookings and revenue with one easy-to-use restaurant management software.